MIESZKANIE TORUŃSKA / Gdańsk

Projekt: 2015
Realizacja: 2016/2017

 

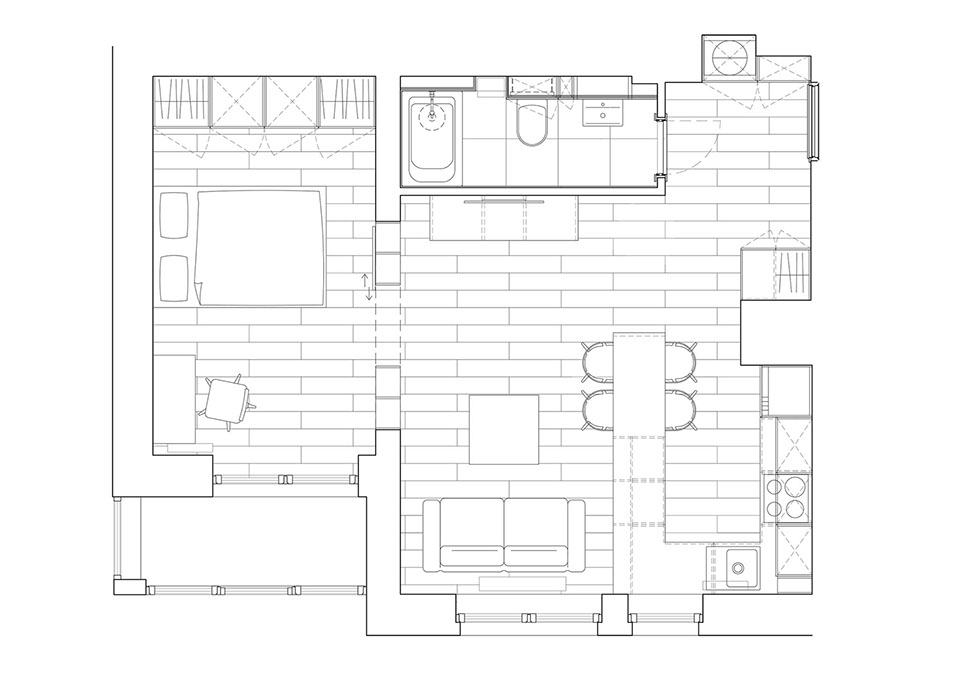
Projekt wnętrz małego, 40 metrowego mieszkania w Gdańsku.

 

Inwestorzy bardzo chcieli aby otworzyć kuchnie na salon, przy jednoczesnym wydzieleniu strefy prywatnej.

Dzięki konstrukcji budynku w postaci ramy H, można było usunąć ścianę działową w salonie. Ponadto, zastosowanie regałów w czytelny sposób oddzieliło salon od sypialni dając jednocześnie miejsce na eksponowanie książek. Przebudowa zwiększy znacząco funkcjonalność mieszkania.